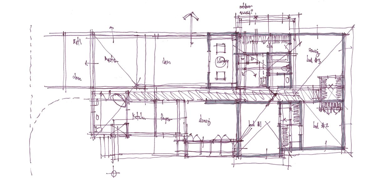
the foundational phase in architecture or engineering where initial concepts are developed into basic layouts, functional relationships, and visual representations (like rough floor plans, elevations, or system flow diagrams) to establish the project's overall direction, form, and feasibility, balancing client needs, site conditions, and technical requirements before detailed specifications are added.
It's about exploring the 'what' and 'where'—overall shape, space, and connections—rather than the 'how,' preventing major issues early on.